

JZMJ膜片聯軸器 特點及應用場合:與金屬彈性元件撓性聯軸器相比,具有機械強度高,承載能力大、質量輕結構尺寸小、傳動效率和傳動精度高,可靠性好、裝拆方便等特點。適用于中、高速、大轉矩軸系傳動。與鼓形齒式聯軸器相比,具有無相對滑動,不需潤滑,使用壽命長、無噪聲、結構簡單等特點.可部分代替鼓形齒式聯輔器。不受溫度和油污影響。具有耐酸、堿,防腐蝕的特點。可用于高溫、低溫和有油、有水和腐蝕介質的工況環境.適用于各種機械裝置載荷變化不大的軸系傳動,通用性極強,工業發達國家已普遍采用,是我國重點推廣應用的高性能撓性聯軸囂,高精度膜片聯軸器可用于高速工況。膜片聯軸器與齒式聯軸器相比,沒有相對滑動,不需要潤滑、密封,無噪聲,基本不用維修,制造較方便,可部分代替齒式聯軸器。膜片聯軸器在工業發達國家應用已很普遍,在實際應用中一般采用接中間軸型,以提高兩軸線偏移補償性能。
JZM型--基本型;
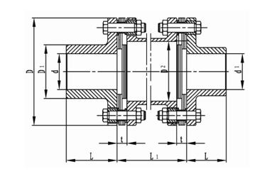
JZMJ型--接中間軸型;

JZMJ型重型機械用膜片聯軸器的參數及主要尺寸: (JB/ZQ 4717-98) mm


公司生產地址:江蘇省鎮江市高新技術開發園區68號
銷售中心地址:江蘇省鎮江丁卯開發區智慧大道668號705室
手機:孫女士 18952800101
QQ:1991897647
電話:0511-85788529
傳真:0511-85019680(自動接收)
企業郵箱:sales@lzqgs.cn
Copyright ? 鎮江海誠機械制造有限公司 版權所有 技術支持:江蘇易潤
專業生產:雨水收集系統 | 彈性聯軸器 | 彈性柱銷聯軸器 | 彈性星型聯軸器 | 梅花形彈性聯軸器 | 中間軸柱銷齒式聯軸器